Join Amagi
Our Model
Our Team
Pods
Blog
FAQ
Residents Brochure
Residents Brochure
Back to Join
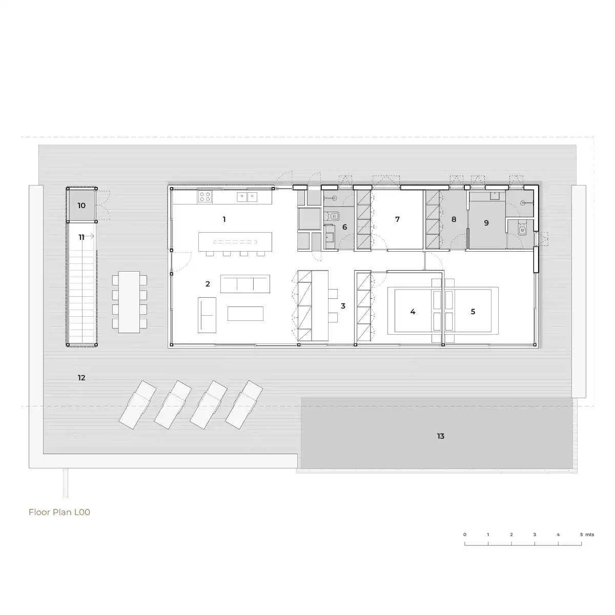
Luxury Villa Horizontal 3 Bedroom
This hillside home combines modern design with natural materials, featuring panoramic views, open-plan living, and an infinity pool. Its elevated stone base blends with the landscape, offering both luxury and harmony with the surrounding nature.
No items found.
More Options
Glamping
Cabin
Tiny House 1 Bedroom
Eaves House 1 Bedroom
Eaves House 2 Bedroom
Luxury Villa Horizontal 2 Bedroom
Luxury Villa Vertical 3 Bedroom